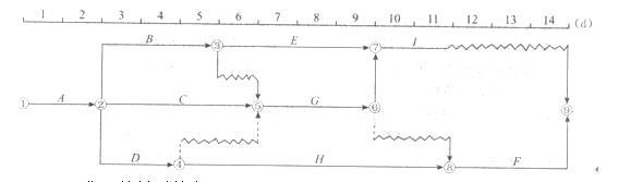
某分部工程双代号时标网络计划如下图所示,该计划所提供的正确信息有( )。 A、工作B的总时差为3 B、工作c的总时差为2 C、工作D为关键工...

作者: rantiku 人气: - 评论: 0
问题 某分部工程双代号时标网络计划如下图所示,该计划所提供的正确信息有( )。
选项 A、工作B的总时差为3 B、工作c的总时差为2 C、工作D为关键工作 D、工作E的总时差为8 E、工作G的自由时差为2
答案 ABC
解析 2018版教材P125 工作G的自由时差是0,因为波线形没有,所以E错误工作E的总时差等于其后所有关键线路上波线长度的最小值,后面只有一条线路即7-9,而7-9的自由时差为3,所以E的总时差为3,而不是8,所以D错误工作C的总时差 2与3中选最小值 所以是等于2的.AB请同样的进行分析,AB是正确的B的总时差可以看B后面有几条链接,分别是BEI(这条线路上B的总时差是0+0+3=3),BG(有一个虚线)F(这条线路是0+1+0+2=3),以及BGI这条线路是0=1=0=3=4,所以最小值为3,B的总时差为3

猜你喜欢

发表评论
更多 网友评论0 条评论)
暂无评论

访问排行

Copyright © 2012-2014 恰考网 Inc. 保留所有权利。 Powered by tikuer.com

页面耗时0.0362秒, 内存占用1.03 MB, Cache:redis,访问数据库19次