背景资料我国沿海某港沉箱重力式码头预制沉箱下水,沉箱外形尺寸为:长8.0m、宽6.0m、高10.0m;沉箱共计有4个长为3.65m、宽2.65m、深9...

作者: rantiku 人气: - 评论: 0
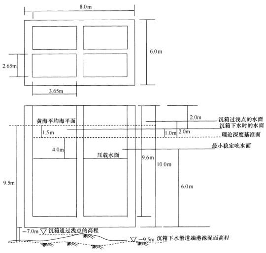
问题 背景资料 我国沿海某港沉箱重力式码头预制沉箱下水,沉箱外形尺寸为:长8.0m、宽6.0m、高10.0m;沉箱共计有4个长为3.65m、宽2.65m、深9.6m的舱格,沉箱底板厚0.4m。沉箱下水时从潮汐表上查得潮高为1.0m,沉箱内压载水顶面较当地海域的理论深度基准面(理论最低潮位)低4.0m,此时沉箱的干舷高度为2.0m(满足沉箱的最小干舷高度要求),沉箱下水滑道端港池泥面高程-9.5m。若该沉箱的浮游稳定最小吃水深为6.0m,当地海域的理论深度基准面(理论最低潮位)与黄海平均海平面相差1.5m,沉箱拖运中要通过局部的海底浅点区,当地大地测量地形图中标明该浅点区的海底高程为-7.0m。拖运沉箱通过浅点区时段内从潮汐表上查得潮高为2.0m。 问题 1.依背景资料计算说明保持干舷2.0m沉箱下水可行否? 2.沉箱下水时,舱格内压载灌水总量为多少m3? 3.保持沉箱的干舷高度为2.0m.计算判断拖运该沉箱可否通过海底浅点区? 4.计算判断若可通过浅点,沉箱底应保持的最小富裕水深为多少?若不能通过浅点区,当采取从沉箱中向外抽水的措施时,最少应该使沉箱舱格内的压载水面下降多少米,才能使沉箱通过浅点区? 5.从沉箱舱格内处外抽水时主要应该注意什么?为什么?
选项
答案
解析 【参考答案】 依背景资料绘示意图 1.沉箱下水可行。沉箱下水时的富裕水深按0.5m计算,沉箱下水时需要的最小水深为:10.0-2.0+0.5=8.5(m)沉箱下水时的实际水深为:9.5-1.5+1.0=9.0m>8.5m沉箱下水可行。 2.3.65*2.65*(10.0-2.0-1.0-4-0.4)*4=100.6(m3) 3.不能通过。拖运沉箱通过浅点需要的最小水深为:8.5m,拖运沉箱通过浅点时的实际水深为:8.5m,保持干舷2.0m,沉箱吃水h=10-2=8m,规范要求的最小富裕水深为0.5m,H=8+0.5=8.5(m)浅点区的实际水深(考虑潮高2.Om),7.0-1.5+2.0=7.5m4.沉箱仓格内抽出Im深的水,沉箱上升的高度为2.65*3.65*4*1.0/(6*8)=0.81(m)过浅区点时差1.0m水深,应抽水使沉箱上升1.0m1.0/0.81=1.23(m),最少应使沉箱仓格内的压载水下降1.23m。沉箱舱格抽水后,沉箱上浮1.0m,吃水7.0m仍满足浮游稳定的吃水6.0m。 5.主要应注意保持各舱格内的水位要同步下降。如果不同步下降形成水头差可能导致沉箱倾斜,甚至倾翻或导致隔墙开裂。

猜你喜欢

发表评论
更多 网友评论0 条评论)
暂无评论

访问排行

Copyright © 2012-2014 恰考网 Inc. 保留所有权利。 Powered by tikuer.com

页面耗时0.0369秒, 内存占用1.04 MB, Cache:redis,访问数据库18次