我国北方某受冻区海港,实测的高、低潮位累积频率关系如表1 和2 所列。港口所在海域的理论深度基准面与黄海平均海平面相差1.0m。该港口新建离岸沉箱...

作者: rantiku 人气: - 评论: 0
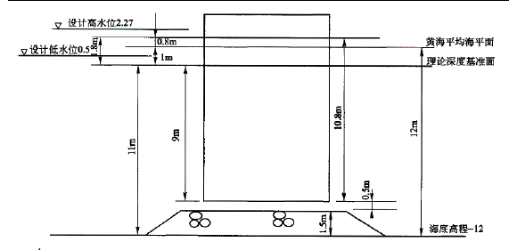
问题 我国北方某受冻区海港,实测的高、低潮位累积频率关系如表1 和2 所列。 港口所在海域的理论深度基准面与黄海平均海平面相差1.0m。 该港口新建离岸沉箱重力式码头及钢管桩梁板式栈桥,预制沉箱的尺寸为长*宽*高 =12m*10m*12m,沉箱基础采用抛石明基床,基床厚1.5m。钢管桩混凝土桩帽顶标高为+2.3m、 底标高为-0.6m。当地地形测量标定海底标高为-12.0m。预制沉箱水位变动区部位采用高抗冻 性的引气混凝土,配合比为1:0.6:1.93,水灰比为0.38,引气剂掺量为水泥用量的0.01%,混 凝土的含气量为4.5%。预制沉箱混凝土所用材料的相对密度如表3 所列。 沉箱安放地的波浪、水流条件很复杂。沉箱下水出运压载后的稳定吃水为10.8m,乘潮安 装时沉箱底距基床顶至少留有0.5m 的富裕高度。 问题: 乘潮安装沉箱,潮高至少要多少才能安全进行安装?
选项
答案
解析 当地地形测量标定海底标高为-12.0m,基床厚1.5m,则基床地形测量的顶面标高为 -10.5m,相对于理论深度基准面的顶面标高为-10.5+1.0=-9.5m。设乘潮安装沉箱需要的潮高为 H,则该时刻水深为:H+9.5m。 沉箱下水出运需要的水深为:10.8m+0.5m=11.3m。 H+9.5m≥11.3m,求得H≥1.8m; 潮高H 至少要1.8m 才能安全进行安装。

猜你喜欢

发表评论
更多 网友评论0 条评论)
暂无评论

访问排行

Copyright © 2012-2014 恰考网 Inc. 保留所有权利。 Powered by tikuer.com

页面耗时0.0386秒, 内存占用1.03 MB, Cache:redis,访问数据库14次