背景材料:下图所示网络计划,合同工期为5 0天。按合同规定工期提前奖励为3 00元/d,工期拖延则赔偿业主300元/d。(注:图中箭线上方为直接费的变...

作者: rantiku 人气: - 评论: 0
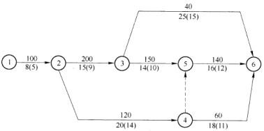
问题 背景材料: 下图所示网络计划,合同工期为5 0天。按合同规定工期提前奖励为3 00元/d,工期拖延则赔偿业主300元/d。(注:图中箭线上方为直接费的变化率,箭线下方为工序正常持续时间和极限持续时间,极限持续时间在括号内。) 问题: 作为施工单位,如何确定工程的工期才能使经济效益最好?
选项
答案
解析 所以选择:37d的方案盈利9 6 0元。

猜你喜欢

发表评论
更多 网友评论0 条评论)
暂无评论

访问排行

Copyright © 2012-2014 恰考网 Inc. 保留所有权利。 Powered by tikuer.com

页面耗时0.0473秒, 内存占用1.03 MB, Cache:redis,访问数据库18次