某高速公路膨胀土路堑段,长480m,挖深8~9m,右侧为顺层边坡,岩土层倾角为12~15,结构面内摩擦角为5,黏聚力为12kPa。边坡加固防护方案如下图所...

作者: rantiku 人气: - 评论: 0
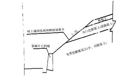
问题 某高速公路膨胀土路堑段,长480m,挖深8~9m,右侧为顺层边坡,岩土层倾角为12~15,结构面内摩擦角为5,黏聚力为12kPa。边坡加固防护方案如下图所示。 施工单位采用如下图所示的工艺流程组织施工,于4月完成该路段边坡施工。 当年6月,在雨水作用下该边坡发生了部分滑坍,施工单位认为是原设计不合理所致,因 此提出了下图所示柔性支护结构方案,并按相关程序报批变更设计。 1.指出图中A、B分别代表的施工过程。 2.说明对该路段路堑护坡变更设计应采取的正确程序。 3.结合图中说明土工格栅与土之间的三种相互作用。 4.结合地质情况说明图中碎石层的作用。 5.结合示意图,说明“种植土 + 种草”有哪几种作用。
选项
答案
解析 1. A指开挖截水沟,B指开挖边沟。 2. 一般工程变更程序:变更人向驻地监理工程师提出申请,驻地监理工程师初审,总监理工程师签署变更令,组织施工,办理结算;重要工程部位及较大问题需建设单位、设计、施工三方洽商,设计单位签发设计变更通知单。 3.格栅表面与土之间的摩擦作用,格栅孔眼对土的锁定作用,格栅肋的被动抗阻作用。 4.碎石层作用:隔离,排水,反滤层。 5.种植土 + 种草的作用:用于边坡稳定,迅速绿化达坡,稳固土层,防止水土流失。

猜你喜欢

发表评论
更多 网友评论0 条评论)
暂无评论

访问排行

Copyright © 2012-2014 恰考网 Inc. 保留所有权利。 Powered by tikuer.com

页面耗时0.0374秒, 内存占用1.03 MB, Cache:redis,访问数据库15次