某工程项目施工采用《水利水电工程标准施工招标文件》(2009年版),招标文件工期为15个月。承包方投标所报工期为13个月。合同总价确定为8000万元。合同...

作者: rantiku 人气: - 评论: 0
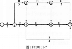
问题 某工程项目施工采用《水利水电工程标准施工招标文件》(2009年版),招标文件工期为15个月。承包方投标所报工期为13个月。合同总价确定为8000万元。合同约定: 实际完成工程量超过估计工程量25%以上时允许调整单价;拖延工期每天赔偿金为合同总价的1‰,最高拖延工期赔偿限额为合同总价的10%;若能提前竣工,每提前1天的奖金按合同总价的1‰计算。 承包方开工前编制并经总监理工程师认可的施工进度计划如图1F420151—7所示。 施工过程中发生了以下4个事件,致使承包单位完成该项目的施工实际用了15个月。 事件1:A、C两项工作为土方工程,工程量均为16万m3,土方工程的合同单价为16元/m3。实际工程量与估计工程量相等。施工按计划进行4个月后,总监理工程师以设计变更通知发布新增土方工程N的指示。该工作的性质和施工难度与
选项 A、C工作相同,工程量为32万m3。N工作在B和C工作完成后开始施工,且为H和G的紧前工作。总监理工程师与承包单位依据合同约定协商后,确定的土方变更单价为14元/m3,用4个月完成。3项土方工程均租用1台机械开挖,机械租赁费为1万元/(月台)。N工作实际用了4.5个月。 事件2:F工作,因设计变更等待新图纸延误1个月。 事件3:G工作由于连续降雨累计1个月导致实际施工3个月完成,其中0.5个月的日降雨量超过当地30年气象资料记载的最大强度,按合同专用条款的界定为风险事件。 事件4:H工作由于分包单位施工的工程质量不合格造成返工,实际5.5个月完成。 由于以上事件,承包单位提出以下索赔要求: (1)顺延工期6个月。理由是:完成N工作4个月;变更设计图纸延误1个月;连续降雨属于不利的条件和障碍影响0.5个月;监理工程师未能很好地控制分包单位的施工质量应补偿工期0.5个月。 (2)N工作的费用补偿=16元/m3*32万m3=512万元。 (3)由于第5个月后才能开始N工作的施工,要求补偿5个月的机械闲置费5*1万元/(月台)*1台=5万元。 问题: (1)请对以上施工过程中发生的4个事件进行合同责任分析。 (2)根据总监理工程师认可的施工进度计划,应给承包单位顺延的工期是多少 说明理由。 (3)确定应补偿承包单位的费用,并说明理由。 (4)分析承包单位应获得工期提前奖励还是承担拖延工期违约赔偿责任,并计算其金额。
答案
解析 (1)合同责任分析如下。 事件1:属于发包方责任。 事件2:属于发包方责任。 事件3:日降雨量超过当地30年气象资料记载最大强度的0.5个月的延期,属于不可抗力。另0.5个月的延期属于承包方应承担的风险责任。 事件4:属于承包方责任。 (2)应给承包单位顺延的工期为1个月。 因发包方责任造成的工作增加或时间延长,应给承包单位顺延工期。属于发包方责任工作增加或时间延长后,进度网络计划如图1F420151—12所示。 原合同工期为13个月,关键线路为A→B→D→H。调整后工期为14个月,关键线路为A→B→N→H,故工期应顺延1个月。 (3)由于用于A、C工作的施工机械原计划第4个月已完成工作,变更增加N工作后第5个月该机械方可使用,故应给予1个月的闲置费; 机械闲置费:1*1万元/(月台)*1台=1万元; 工程量清单中计划土方为16+16=32万m3,新增土方工程量为32万m3; 应按原单价计算的新增工程量为32*25%=8万m3; 补偿土方工程款为8万m3*16元/m3+(32-8)万m3*14元/m3=464万元; 补偿承包方的总费用为465万元。 (4)该工程实际完成工作时间如图1F420151—13所示。 实际工期为15个月,超过约定工期2个月,承包方应承担超过合同工期1个月的违约责任。 拖延工期赔偿费为8000万元*1‰*30天=240万元<最高赔偿限额=8000万元*10%=800万元。

猜你喜欢

发表评论
更多 网友评论0 条评论)
暂无评论

访问排行

Copyright © 2012-2014 恰考网 Inc. 保留所有权利。 Powered by tikuer.com

页面耗时0.0867秒, 内存占用1.04 MB, Cache:redis,访问数据库18次