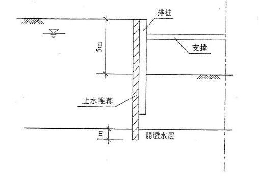
采用排桩式围护结构的基坑,土层为含潜水的细砂层。原方案为排桩加止水帷幕,采用坑内集水明排,断面如图所示。现拟改为坑外降氷井方案,降水深度在坑底0.5m以下...

作者: tihaiku 人气: - 评论: 0
问题 采用排桩式围护结构的基坑,土层为含潜水的细砂层。原方案为排桩加止水帷幕,采用坑内集水明排,断面如图所示。现拟改为坑外降氷井方案,降水深度在坑底0.5m以下。下列哪些选项符合降水方案改变后条件的变化? (A)可适当减小排桩的桩径 (B)可适当减小排桩的插入深度 (C)可取消止水帷幕 (D)在设计时需计算支护结构上的水压力
选项
答案 ABC
解析

猜你喜欢

发表评论
更多 网友评论0 条评论)
暂无评论

访问排行

Copyright © 2012-2014 恰考网 Inc. 保留所有权利。 Powered by tikuer.com

页面耗时0.0399秒, 内存占用1.03 MB, Cache:redis,访问数据库19次