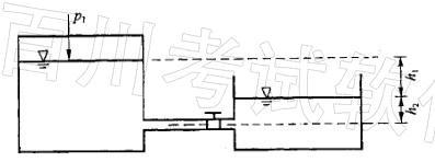
如图所示,两水箱间用一简单管道相连接,在计算该管道的流量时,其作用水头H0为:

作者: rantiku 人气: - 评论: 0
问题 如图所示,两水箱间用一简单管道相连接,在计算该管道的流量时,其作用水头H0为:
选项
答案 B
解析 提示:参看淹没或短管出流相关内容。

猜你喜欢

发表评论
更多 网友评论0 条评论)
暂无评论

访问排行

Copyright © 2012-2014 恰考网 Inc. 保留所有权利。 Powered by tikuer.com

页面耗时0.0379秒, 内存占用1.03 MB, Cache:redis,访问数据库18次