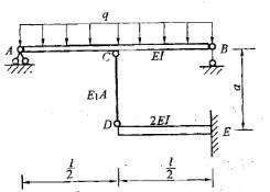
图示结构简支梁AB与悬臂梁DE用铰链与弹性杆CD相连。已知q、l、a、EI、E1A,则CD杆的内力为:

作者: rantiku 人气: - 评论: 0
问题 图示结构简支梁AB与悬臂梁DE用铰链与弹性杆CD相连。已知q、l、a、EI、E1A,则CD杆的内力为:
选项
答案 B
解析 提示:设AB梁C点挠度为fc,是由均布荷载q和CD杆的轴力N共同作用产生的;设DE梁D点的挠度为fD,是由CD杆轴力N作用产生的;设CD杆缩短量为Δa,则有几何变形协调方程fc-fD =Δa。代入物理方程(查表),即可求出轴力N。

猜你喜欢

发表评论
更多 网友评论0 条评论)
暂无评论

访问排行

Copyright © 2012-2014 恰考网 Inc. 保留所有权利。 Powered by tikuer.com

页面耗时0.0398秒, 内存占用1.03 MB, Cache:redis,访问数据库20次