为了满足××市数字城市建设的需要,××市计划生产该地区的1:2 000比例尺的数字正射影像图( DOM)和1:2 000比例尺数字地形图。已于××年××月...

作者: tihaiku 人气: - 评论: 0
问题

为了满足××市数字城市建设的需要,××市计划生产该地区的1:2 000比例尺的数字正射影像图( DOM)和1:2 000比例尺数字地形图。已于××年××月完成了全部测区的航空摄影工作,并完成了区域网外业控制点的布设和测量工作,现阶段的工作是完成全部测区的解析空中三角测量(空三加密)的任务。 测区为华北地区的一个地级市,总面积约3 500 km2。全测区包含平地和丘陵地两种地形,其中绝大多数是平地,约占整个测区80%的面积,主要位于测区南部的大部分地区;测区内有少量丘陵地区,主要集中在测区的北部,其面积约占整个测区面积的20%;测区内海拔高度平地低点为24 m,丘陵地最高海拔352 m。

测区内建成区面积约为350 km2,主要分布在平坦地区,建成区内以多层建筑楼房为主,房屋密集;其农村居民地以一、二层建筑为主。

主要技术依据如下:

1.《1:500 1:1 000 1:2 000地形图航空摄影规范》(GB/T 6962—2005);

2.《1:500 1:1 000 1:2 000地形图航空摄影测量外业规范》(GB/T 7931—2008);

3.《1:500 1:1 000 1:2 000地形图航空摄影测量内业规范》(GB/T 7930—2008);

4.《数字航空摄影测量空中三角测量规范》( GB/T 23236—2009);

5.《数字测绘成果质量要求》( GB/T 17941—2008);

6.《数字测绘成果质量检查与验收》( GB/T 18316—2008);

7.平面系统采用1980西安坐标系;

8.高程系统采用1985国家高程基准。

航空摄影采用传统的航空摄影方式,航摄比例尺为1:8 000,航摄仪型号为RC—30,像幅为18 cm*18 cm,航摄仪焦距为152 mm,影像扫描分辨率为0.02 mm,像片类型为真彩色。

航摄总面积为3 500 km2,测区共布设60条航线,每条航线84张航片,测区航片总数为5 040张,航片的航向重叠65%,旁向重叠35%,东西向飞行。

航空摄影成果已通过质检部门的检查验收,其飞行质量和影像质量均满足规范和设计要求。

整个测区的区域网外业控制点的布设和测量工作已全部完成,按平坦地区和丘陵地区两个布设方案实施,其基本情况如下:平坦地区航线按每4条基线在其周边布设6个平高点;丘陵地区航线按每4条基线在其周边布设8个平高点;平坦地区和丘陵地区接边处的外业控制点已互相转刺,保证所有同名公共控制点均得到共用;区域网外业像片控制点的精度和成果质量均符合规范和技术设计的要求,质检部门已同意将该成果移交给解析空中三角测量工序使用。

问题

(1)空中三角测量内业加密点的选刺有何要求?像点坐标量测包括哪些内容?

(2)计算航带模型连接平面位置较差限差和高程较差限差。

(3)空中三角测量的质量检查包括哪些内容?

选项
答案
解析

(1)(参见8.2考点2)

加密点选刺的要求如下:

①每个像对不应少于6个内业加密点;

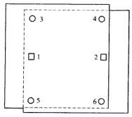
②加密点应选刺在下图所示的标准点位1、3、5、2、4、6附近,1、2点选在距离像主点1 cm范围内的明显点上;

③像幅为18 cm *18 cm,加密点距离像片边缘不应小于1.5 cm;

④相邻像对、相邻航带和相邻区域网间的同名公共点均要转刺;当航向和旁向重叠过大时,隔像对、隔航带的同名公共点也要转刺;

⑤自由图边的加密点应选在图廓线以外;

⑥可根据质量检查的需要适当选取检查点。

像点坐标量测加密点像点坐标量测、野外像片控制点像点坐标量测、相邻航带间所有同名公共点转标量测、相邻区域网中相邻航带间所有同名公共点转标量测4项内容。

(2)同一航带模型连接较差△S、△Z,是衡量加密点选点和像点坐标量测精度的指标,也是衡量相对定向精度的指标之一。其中△S为平面位置较差限差,单位为m;△Z为高程较差限差,单位为m。

△S≤0. 006*M*0. 001

△Z≤0.04 *(M *f*0.001)/b

式中:M为像片比例尺分母;f为航摄仪焦距(mm);b为像片基线长度( mm)。

b=L(1 -P)

式中:L为像幅在航向方向的长度mm;P为像片航向重叠度。

△S≤0. 006 *8 000 *0. 001 =0. 048 m

△Z≤0.04*(8000*0.152*0.001)/[18*(1-65%)]≈0.008m

(3)解析空中三角测量的质量检查包括以下内容(参见考点4)。

①外业控制点和检查点成果使用正确性捡查。

检查区域网基本定向点的平面和高程坐标值是否正确,多余控制点的平面和高程坐标值是否正确,是否有被遗漏未用的外业像片控制点。

②航摄仪检定参数与航摄参数检查。

检查航摄仪参数使用的是否正确,如像片坐标系使用是否正确、框标坐标值输入是否正确、航摄仪焦距使用是否正确、航摄仪镜头自准轴主点坐标输入是否正确、航摄仪镜头对称畸变差测定值输入是否正确、各航带航空摄影飞行方向标志输入是否正确等。

③各项平差计算的精度检查。

各项平差计算的精度检查主要包括对内定向、相对定向、绝对定向和区域网接边等精度进行检查。

④提交成果完整性检查。

用户或下工序需要的成果是否齐全、完整。

相关内容:数字,城市建设,需要,计划,生产,地区,比例尺,射影,地形图

猜你喜欢

发表评论
更多 网友评论0 条评论)
暂无评论

访问排行

Copyright © 2012-2014 恰考网 Inc. 保留所有权利。 Powered by tikuer.com

页面耗时0.0573秒, 内存占用1.04 MB, Cache:redis,访问数据库14次