试题六I、土建工程 【背景资料】 某钢筋混凝土框架结构建筑,总层数三层,首层建筑平面图、柱及基础梁布置图、框架梁结构图、独立柱基础图见图 6-Ⅰ-1、...

作者: tihaiku 人气: - 评论: 0
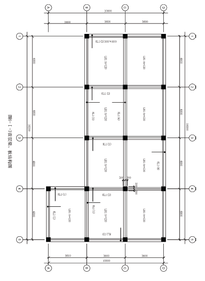
问题 试题六I、土建工程 【背景资料】 某钢筋混凝土框架结构建筑,总层数三层,首层建筑平面图、柱及基础梁布置图、框架梁结构图、独立柱基础图见图 6-Ⅰ-1、6-Ⅰ-2、6-Ⅰ-3、6-Ⅰ-4 所示。首层板顶结构标高为 3.6m,外墙为 240mm 厚空心砖填充墙,M7.5 混合砂浆砌筑。M 为 2000mm×3000mm 的塑钢平开门;C 为 2400mm×1500mm 的铝合金推拉窗;窗台高 600mm。窗洞口上设钢筋混凝土过梁,截面为 240mm×180mm,过梁两端各伸出洞边 250mm。 梁、板、柱的混凝土均采用 C30 商品砼,垫层采用 C10 商品砼。水泥砂浆地面。内墙面 20mm 厚 1:2.5 水泥砂浆抹面。天棚吊顶为轻钢龙骨矿棉板平面天棚,U 型轻钢龙骨中距为 450mm×450mm,面层为矿棉吸声板,吊顶底距离地面 2.8m。 问题: 1.依据《房屋建筑与装饰工程计量规范》(GB500854-2013)的要求计算建筑物首层框架梁、填充墙、门窗、独立基础模板(17 个)的工程量。将计算过程及结果填入答题纸相应位置。 2.假定砼垫层工程量6.8 m3、独立基础28.83 m3、基础梁11.95 m3、首层柱8.16 m3、现浇楼板16.37m3、天棚153.99 ㎡,依据《房屋建筑与装饰工程计量规范》和《建设工程工程量清单计价规范》(GB50500-2013)编制砼垫层、独立基础、基础梁、以及首层柱、框架梁、过梁、现浇楼板、填充墙、天棚、门窗的分部分项工程量清单,分部分项工程的统一编码见表6-Ⅰ-1。 3.根据表6.Ⅰ.2 空心砖墙定额消耗量、表6.Ⅰ.3 各种资源市场价格和管理费、利润及风险费率标准(管理费费率为人、材、机费用之和的12%,利润及风险费率为人、材、机、管理费用之和的4.5%。),编制填充墙的工程量清单综合单价分析表,见表6.Ⅰ.5。
选项
答案
解析 Ⅰ土建工程 问题1: (1)框架梁: 0.3×0.6×(4.8-0.4)[A 轴] +0.3×0.6×(19.2-0.4×4)×3[BCD 轴] +0.3×0.6×(7.2-0.4×2)×3[①②③轴] +0.3×0.6×(10.8-0.4×3)×2[④⑤轴] =17.21m3 (2)填充墙: 扣过梁:0.24×0.18×(2.4+0.25×2)×10=1.25 m3 扣M:2×3×0.24=1.44 m3 扣C:2.4×1.5×0.24×10=8.64 m3 墙高:3.6+0.3-0.6=3.3m 墙长:(4.8-0.4)×8+(3.6-0.4)×6=54.4m V=54.4×3.3×0.24-1.44[M]-8.64[C]-1.25[过梁]=31.75 m3 (3)门窗: M:1 樘或6 ㎡; C:10 樘或36 ㎡。 (4)17 个独立基础模板: (1.8×4×0.4+1×4×0.4)×17=76.16 ㎡ 问题2: 问题3:

相关内容:试题,土建工程,背景,资料,钢筋混凝土,框架结构,建筑,平面图,基础,梁布置,框架,结构图,立柱

猜你喜欢

发表评论
更多 网友评论0 条评论)
暂无评论

访问排行

Copyright © 2012-2014 恰考网 Inc. 保留所有权利。 Powered by tikuer.com

页面耗时0.0625秒, 内存占用1.05 MB, Cache:redis,访问数据库20次