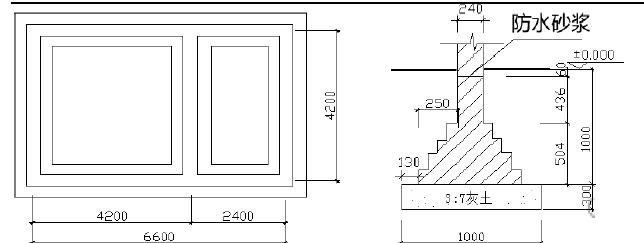
某砖基础工程平面图、剖面如图所示,烧结标准砖,DM7.5-HR 干混砌筑砂浆 ,基础底铺3:7 灰土垫层300mm厚,基础防潮层采用抹灰砂浆DP-MR 加...

作者: tihaiku 人气: - 评论: 0
问题 某砖基础工程平面图、剖面如图所示,烧结标准砖,DM7.5-HR 干混砌筑砂浆 ,基础底铺3:7 灰土垫层300mm厚,基础防潮层采用抹灰砂浆DP-MR 加防水剂。请编制有关分部分项工程工程量清单。
选项
答案
解析 (1)有哪些清单项目:灰土垫层(010404001)、砖基础(010401001001)。 (2)计算工程量: V 垫层=[(6.6+4.2)*2+(4.2-1)]*1*0.3=7.44m3 V 砖基础=0.24*(1+0.656)*[(6.6+4.2)*2+(4.2-0.24)]=10.16m3

相关内容:某砖,基础工程,平面图,剖面,如图,标准,DM7.5-HR,干混,砂浆,基础,底铺,灰土,防潮

猜你喜欢

发表评论
更多 网友评论0 条评论)
暂无评论

Copyright © 2012-2014 恰考网 Inc. 保留所有权利。 Powered by tikuer.com

页面耗时0.0311秒, 内存占用1.05 MB, Cache:redis,访问数据库19次