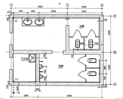
某工厂办公楼内卫生间的给水施工图如图2.I.1和2.I.2所示。 2.假设按规定计算的该卫生间给水管道和阀门部分的清单工程量如下: PP...

作者: tihaiku 人气: - 评论: 0
问题 某工厂办公楼内卫生间的给水施工图如图2.I.1和2.I.2所示。 2.假设按规定计算的该卫生间给水管道和阀门部分的清单工程量如下: PP-R塑料管:dn50,直埋3.0m;dn40,直埋5.0m,明设1.5m;dn32,明设25m;dn25,明设16m。 阀门Q11F-16C:DN40:2个;DN25:2个。 其他安装技术要求和条件与图2.I.1和图2.I.2 所示致。 3.给排水工程相关分部分项工程量清单项目的统一编码见表2.1.1。 【问题】 1.按照图2.I.1和2.I.2所示内容,按直埋、明设(指敷设于室内地坪下的管段)分别列式计算给水管道和阀门安装项目分部分项清单工程量。计算要求:管道工程量计算至支管与卫生器具相连的分支三通或末端弯头处止。 2.根据背景资料2、3和图2.I.1和2.I.2所示内容,按《通用安装工程工程量计算规范》GB50856-2013的规定,分别编制管道、阀门、卫生器具(污水池除外)安装项目的分部分项工程量清单,并填入答题卡表2.I.3“分部分项工程和单价措施项目清单与计价表”中。 表2.I.3 分部分项工程和单价措施项目清单与计价表 工程名称:某厂区 标段:办公楼卫生间给排水工程安装 第1页 共1页
选项
答案
解析 问题1: 计算卫生间给水管道和阀门安装项目分部分项清单工程量: (1)dn50 PP-R塑料管直埋: 2.6+0.15=2.75(m) (2)dn40 PP-R塑料管直埋: 2.2+2.8-0.15-0.15+0.6+0.6=5.9(m) (3)dn40 PP-R塑料管明设: 1.3+0.4=1.7(m) (4)dn32 PP-R塑料管明设: 3.6+[3.6+(0.8-0.4)]+[1.8+4.4-0.15-0.15+(1.3-0.8)+0.7+0.9-0.15]×2+[3.9+2.3-0.15-0.15+(0.8-0.4)+2.8-0.15-0.15+0.7+0.9-0.15]×2=43.8(m) (5)dn25 PP R塑料管明设: [(1.3 1)+2.2 0.15 0.3]×2+(0.5+0.7 0.15)×2=6.2(m) (6)DN40球阀Q11F-16C:1个 (7)DN25球阀Q11F-16C:1×2+1×2=4(个) 问题2:

相关内容:工厂,办公,楼内,给水,施工图,如图,假设,卫生间,管道,阀门,部分,清单,工程量,如下

猜你喜欢

发表评论
更多 网友评论0 条评论)
暂无评论

Copyright © 2012-2014 恰考网 Inc. 保留所有权利。 Powered by tikuer.com

页面耗时0.0377秒, 内存占用1.05 MB, Cache:redis,访问数据库20次