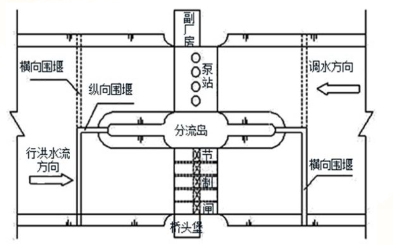
某平原区枢纽工程由泵站、节制闸等组成,采用闸、站结合布置方式,泵站与节制闸并排布置于调水河道,中间设分流岛,如图1所示。泵站共安装4台立式轴流泵,装机流量...

作者: tihaiku 人气: - 评论: 0
问题 某平原区枢纽工程由泵站、节制闸等组成,采用闸、站结合布置方式,泵站与节制闸并排布置于调水河道,中间设分流岛,如图1所示。泵站共安装4台立式轴流泵,装机流量100m3/s,配套电机功率4×1600kW;节制闸最大过闸流量960m3/s。建筑物地基地层结构从上至下依次为淤泥质黏土、中粉质壤土、重粉质壤土、粉细砂、中粗砂等,其中粉细砂和中粗砂层为承压含水层,承压水位高于节制闸底板高程。节制闸基础采用换填水泥土处理。泵站基坑最大开挖深度为10.5m,节制闸基坑最大开挖深度为6.0m(包括换土层厚度)。 图1 枢纽工程布置示意图 该枢纽工程在施工期间发生如下事件: 事件一:为方便施工导流和安全度汛,施工单位计划将泵站与节制闸分两期实施,在分流岛部位设纵向围堰,上、下游分期设横向围堰,如图1所示。纵、横向围堰均采用土石结构。在基坑四周布置单排真空井点进行基坑降水。 事件二:泵站厂房施工操作平台最大离地高度38.0m,节制闸启闭机房和桥头堡施工操作平台最大离地高度35.0m。施工单位采用满堂脚手架进行混凝土施工,利用塔吊进行混凝土垂直运输,其中厂房外部走廊采用外悬挑脚手架施工。厂房内桥式起重机安装及室内装饰工程采用移动式操作平台施工,泵站机组利用桥式起重机进行安装;节制闸启闭机房施工时进行闸门安装(交叉作业),闸门在铺盖上进行拼装。 事件三:施工单位为加强施工安全生产管理,在施工区入口处悬挂“五牌一图”,对施工现场的“三宝”、“四口”、“五临边”作出明确规定和具体要求。 <1> 、指出本枢纽工程等别、主要建筑物级别以及施工围堰的洪水标准范围。 <2> 、根据事件一,本枢纽工程是先施工泵站还是先施工节制闸?为什么? <3> 、事件一中基坑降水方案是否可行,为什么?你认为合适的降水方案是什么? <4> 、根据事件二的施工方案以及工程总体布置,指出本工程施工现场可能存在的重大危险源(部位或作业)。 <5> 、事件三中提到的“四口”指的是什么?
选项
答案
解析 <1> 、枢纽工程等别为Ⅱ等,主要建筑物级别为2级,施工围堰洪水标准范围为10~20年一遇。 <2> 、先施工节制闸。根据事件一分期实施方案和工程总体布置,本工程分两期实施主要是方便施工导流,先施工节制闸,利用原有河道导流(泵站无法进行施工导流);在泵站施工时可利用节制闸导流。 <3> 、不可行。因为粉细砂和中粗砂层渗透系数较大,地基承压含水层水头较高(承压水位高于节制闸底板高程),因此不宜采用单排真空井点降水。宜采用管井降水方案。 <4> 、施工现场可能存在的重大危险源(部位或作业)有:30米以上的高处作业(泵站厂房、启闭机房、桥头堡施工操作平台)、“四口”部位(楼梯口、通道口、预留洞口、电梯井口)、临时用电设施、塔吊、外悬挑脚手架、移动操作平台、易发生事故的交叉作业、桥式起重机等。 <5> 、“四口”是指楼梯口、通道口、预留洞口、电梯井口。

相关内容:平原区,枢纽,工程,泵站,节制,方式,布置于,调水,河道,如图,1所示,轴流泵,流量

猜你喜欢

发表评论
更多 网友评论0 条评论)
暂无评论

访问排行

Copyright © 2012-2014 恰考网 Inc. 保留所有权利。 Powered by tikuer.com

页面耗时0.0469秒, 内存占用1.05 MB, Cache:redis,访问数据库19次