如图10-2所示,为一建筑施工图。问题:说明该墙身剖面详图的图示方法,该详图包括哪些基本内容?

作者: rantiku 人气: - 评论: 0
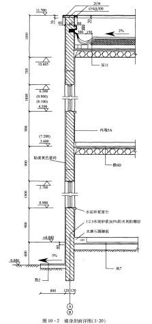
问题 如图10-2所示,为一建筑施工图。 问题: 说明该墙身剖面详图的图示方法,该详图包括哪些基本内容?
选项
答案
解析 (1)该图外墙身剖面详图,外墙身详图实际是建筑剖面图中外墙从室外地坪以下到屋顶檐部的局部放大图。它表明房屋顶层、楼板层、地面和檐部的构造,楼板与墙的连接,门窗顶、窗台与勒脚、散水等的构造情况,可以为砌墙、预留门窗洞口、安放预制构配件、室内外装修等提供施工依据。 (2)该详图的基本内容包括: ①墙的厚度与各部分的尺寸变化及与定位轴线的关系; ②地面节点表明防潮层、室内地面和室外勒脚及散水的构造做法; ③中间节点表明各层墙体与圈梁、楼板等构件的连接关系及连接做法,表明各层地面、楼面等的标高及构造做法,表明门窗洞口的高度及标高; ④檐口节点表明屋面的高度、标高及构造做法。建筑物的承重和围护构件,它承受屋顶、楼板传来的荷载,并将这些荷载连同自重一 起传给基础。外墙与屋顶一起组成了整个房屋的外壳,抵抗雨、雪、风沙的侵袭,阻止太 阳的辐射,夏季隔热、冬季保温。内墙起分隔室内空间、避免相互干扰的作用。 ⑤窗主要起采光和通风的作用,同时又有分隔和围护作用,是非承重构件。

猜你喜欢

发表评论
更多 网友评论0 条评论)
暂无评论

访问排行

Copyright © 2012-2014 恰考网 Inc. 保留所有权利。 Powered by tikuer.com

页面耗时0.0944秒, 内存占用1.03 MB, Cache:redis,访问数据库20次