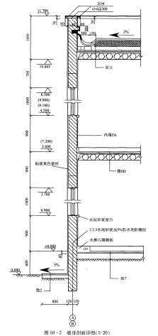
如图10-2所示,为一建筑施工图。问题:首层层高、窗洞口高度及首层窗台高度各是多少?

作者: rantiku 人气: - 评论: 0
问题 如图10-2所示,为一建筑施工图。 问题: 首层层高、窗洞口高度及首层窗台高度各是多少?
选项
答案
解析 首层层高、窗洞口高度及首层窗台高度如下: (1)首层层高:3.6m。 (2)首层窗洞口高度:1.8m。 (3)首层窗台高度:相对于室内地面高度0.9m。

猜你喜欢

发表评论
更多 网友评论0 条评论)
暂无评论

访问排行

Copyright © 2012-2014 恰考网 Inc. 保留所有权利。 Powered by tikuer.com

页面耗时0.0356秒, 内存占用1.03 MB, Cache:redis,访问数据库19次