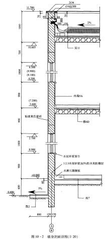
如图10-2所示,为一建筑施工图。问题:简述屋面和楼地面对房屋装修技术、房屋养护、房屋维修管理的要求?

作者: rantiku 人气: - 评论: 0
问题 如图10-2所示,为一建筑施工图。 问题: 简述屋面和楼地面对房屋装修技术、房屋养护、房屋维修管理的要求?
选项
答案
解析 屋面和楼地面对房屋装修技术、房屋养护、房屋维修管理的要求如下: (1)对房屋装修技术的要求包括:楼(地)面装饰材料的重量不得超过规定值,否则,必须经房屋安全鉴定站(室)鉴定;在粘贴厨房、卫生间地面装饰材料前,必须对基层做防水处理,并按规定办理蓄水24小时检验合格的签认手续;卫生间的蹲坑改坐便器,不得随意变动下水排水甩口位置。 (2)楼地面对房屋养护工作的要求:经常用水房间楼地面的有效防水、避免室内受潮与虫害、控制与消除装饰材料的有害作用。屋面工程的养护的要求包括:定期清扫,保证各种设施处于有效状态;定期检查、记录、并对发现的问题及时处理;严格执行维修制度;加强屋面使用的管理。 (3)对房屋维修管理工作的要求包括:楼地面工程的维修应牢固、安全、平整、不起砂、拼缝严密不闪动,不空鼓开裂,地坪无倒泛水现象;如房间长期处于潮湿环境,可增设防潮层。木基层或增强砂楼面损坏严重时,应改作钢筋混凝土楼面;屋面必须确保安全,不渗漏,排水畅通。

猜你喜欢

发表评论
更多 网友评论0 条评论)
暂无评论

访问排行

Copyright © 2012-2014 恰考网 Inc. 保留所有权利。 Powered by tikuer.com

页面耗时0.0425秒, 内存占用1.04 MB, Cache:redis,访问数据库19次