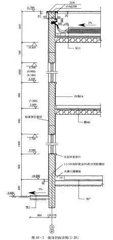
如图10-2所示,为一建筑施工图。问题:该建筑的水平承重构件对装修技术、房屋维修管理的要求有哪些?

作者: rantiku 人气: - 评论: 0
问题 如图10-2所示,为一建筑施工图。 问题: 该建筑的水平承重构件对装修技术、房屋维修管理的要求有哪些?
选项
答案
解析 (1)该建筑的水平承重构件对房屋装修技术的要求: 不得在混凝土面孔板上凿洞、打眼、吊挂顶棚及艺术照明灯具;未经房屋安全鉴定站(室)鉴定的房屋装饰,其承重墙(18cm以上厚砖墙、12cm以上厚混凝土墙)、共用部位隔断墙、外砖护墙、抗震墙体上不得随意掏墙、打洞、剔槽,不得擅自拆改。 (2)该建筑的水平承重构件对房屋维修管理工作的要求: 当主体结构损坏严重时,不论修缮哪一类房屋,均应要求牢固、安全、不留隐患。

猜你喜欢

发表评论
更多 网友评论0 条评论)
暂无评论

访问排行

Copyright © 2012-2014 恰考网 Inc. 保留所有权利。 Powered by tikuer.com

页面耗时0.0356秒, 内存占用1.03 MB, Cache:redis,访问数据库20次