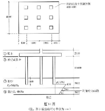
某桩基工程安全等级为二级、其桩型平面布置、剖面及地层分布如图所示,土层及桩基设计参数见图中注,作用于桩端平面处的有效附加应力为400kPa(长期效应组合)...

作者: tihaiku 人气: - 评论: 0
问题 某桩基工程安全等级为二级、其桩型平面布置、剖面及地层分布如图所示,土层及桩基设计参数见图中注,作用于桩端平面处的有效附加应力为400kPa(长期效应组合),其中心点的附加压力曲线如图所示(假定为直线分布)。沉降经验系数φ=1,地基沉降计算深度至基岩面,按《建筑桩基技术规范》(JGJ94一94)验算桩基最终沉降量,其计算结果最接近()。 A.3.6cm B.5.4cm C.7.9cm D.8.6cm
选项
答案 B
解析

相关内容:桩基,工程,等级,其桩型,平面,剖面,地层,如图,土层,设计,参数,图中,桩端,附加,应力,400kPa,效应,组合

猜你喜欢

发表评论
更多 网友评论0 条评论)
暂无评论

访问排行

Copyright © 2012-2014 恰考网 Inc. 保留所有权利。 Powered by tikuer.com

页面耗时0.0410秒, 内存占用1.05 MB, Cache:redis,访问数据库20次