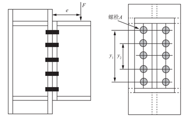
计算图示高强度螺栓摩擦型连接节点时,假设螺栓A所受的拉力为(  )。

作者: tihaiku 人气: - 评论: 0
问题 计算图示高强度螺栓摩擦型连接节点时,假设螺栓A所受的拉力为(  )。
选项
答案 B
解析 高强螺栓摩擦型螺栓群在弯矩作用下所受拉力的计算公式为:

相关内容:螺栓,摩擦型,节点,假设,拉力

猜你喜欢

发表评论
更多 网友评论0 条评论)
暂无评论

访问排行

Copyright © 2012-2014 恰考网 Inc. 保留所有权利。 Powered by tikuer.com

页面耗时0.0306秒, 内存占用1.05 MB, Cache:redis,访问数据库19次