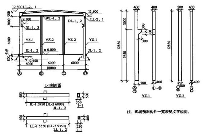
某拟建项目机修车间,厂房设计方案采用预制钢筋混凝土排架结构,其上部结构如图6.1 所示,结构体系中现场预制标准构件和非标准构件的混凝土强度等级,设计参考钢...

作者: tihaiku 人气: - 评论: 0
问题 某拟建项目机修车间,厂房设计方案采用预制钢筋混凝土排架结构,其上部结构如图6.1 所示,结构体系中现场预制标准构件和非标准构件的混凝土强度等级,设计参考钢筋含量见下表: 另查阅国家标准图集,所选用的薄腹屋面梁混凝土用量为3.11m3/品(厂房中间与两端山墙处屋面梁的混凝土用量相同,仅预埋件不同),所选用的T 型吊车梁混凝土用量,车间两端为1.13m3/根,其余为1.08m3/根。 问题1:根据上述条件和《房屋建筑与装饰工程工程量计算规范》(GB50854-2013)的计算规则,在6.1.1 中,列式计算机修车间上部结构构件的混凝土柱、梁工程量及相应钢筋工程量。 已知相关数据为:①预制混凝土矩形柱的编码010509001,本车间预制混凝土柱单件体积<3.5m3,就近插入基础杯口,人材机合计513.71元/m3②预制混凝土基础梁的清单编码为010510001,本车间基础梁就近地面安装,单件体积<1.2 m3,人材机合计402.98元/m3③预制混凝土柱顶连系梁的清单编码010510001,本车间连系梁单件体积<0.6m3,安装高度<12m3,人材机合计423.21元/m3,④预制混凝土T型吊车梁的清单编码为010510002,本车间T型吊车梁单件体积<1.2m3,安装高度小于等于9.5m3,530.38元/m3,⑤预制混凝土薄腹屋面梁清单编码为010511003,本车间薄腹屋面梁单件体积<3.2m3,安装高度13m,人材机合计561。35元/m3,⑥预制混凝土构件钢筋的清单编码为010515002,本车间所用钢筋直径为6~25mm,人材机合计6018.70元/t。以上项目管理费均以人材机为基础按10%计算,利润均以人材机和管理费合计为基数按5%计算。 2.利用以下相关数据,在6.1.3中,编制机修车间土建单位工程招标控制价汇总表。已知相关数据为:①一般土建分部分项工程费785800.00元(含可抵扣的进项税为800元)②措施项目费用为62800.00元 (不含可抵扣的进项税),其中安全文明施工费26500.00元(不含可抵扣的进项税);③其他项目费用屋面防水专业分包暂估70000.00元(不含可抵扣的进项税);④规费为48459.84万元(不含可抵扣的进项税)⑤增值税税率为10%.(计算结果均保留两位小数) 管道和设备安装工程 1.某办公楼卫生间给排水系统工程设计,如图6.Ⅱ.1、6.Ⅱ.2和6.Ⅱ.3所示。 给水管道系统及卫生器具有关分部分项工程量清单项目的统一编码,见表6.Ⅱ.1: 企业管理费和利润分别是人工费的85%和35%。 问题: 1.根据图6.Ⅱ.1所示,按照《通用安装工程计量规范》(GB50500-2013)及其有关规定,完成以下内容: (1)计算出所有给水管道的清单工程量,并写出其计算过程; (2)编列出给水管道系统及卫生器具的分部分项工程量清单项目,相关数据填入表6.Ⅱ.3“分部分项工程量清单与计价表”内。 2.假设镀锌钢管DN32的长度为20m,按照背景条件2,在表6.Ⅱ.4“工程量清单综合单价分析表”中,编制镀锌钢管DN32管道工程量清单综合单价。 3.按照《通用安装工程计量规范》(GB50500-2013)的规定,在表6.I.5“分部分项工程量清单与计价表”中,编制镀锌钢管DN32管道工程量清单与计价表。(计算结果均保留两位小数) 4.该工程单位工程招标控制价为485500元(含5000安全文明施工费,其分摊的规费税金为500元),中标人投标报价工程费为444400元(含4000安全文明施工费,其分摊的规费税金为400元)。在施工过程中,发包人向承包人提出增加安装2个洗脸盆的工程变更,洗脸盆由施工单位采购,但业主暂定价格为420元/个。合同约定:招标工程量清单中没有适用的类似项目,欣欣助考QQ1834740478按照《建设工程工程量清单计价规范》(GB 50500-2013)规定和洗脸盆的报价浮动率确定清单综合单价。经查当地工程造价管理机构发布的洗脸盆安装定额价目表为290元,其中人工费120元。列式计算洗脸盆安装项目的清单综合单价。 (计算结果保留两位小数) 说明: 1.图示为某办公楼卫生间,共三层,层高为3m,图中平面尺寸以mm计,标高均以m计。墙体厚度为240mm. 2.给水管道均为镀锌钢管,螺纹连接。给水管道与墙体的中心距离为200mm. 3.卫生器具全部为明装,安装要求均符合《全国统一安装工程预算定额》所指定标准图的要求,给水管道工程量计算至与大便器、小便器、洗面盆支管连接处止。其安装方式为:蹲式大便器为手压阀冲洗;挂式小便器为延时自闭式冲洗阀:洗脸盆为普通冷水嘴;混凝土拖布池为500×600落地式安装,普通水龙头,排水地漏带水封;立管检查口设在一、三层排水立管上,距地面0.5m处。 4.给排水管道安装完毕,按规范进行消毒、冲洗、水压试验和试漏。
选项
答案
解析 问题1: 给水管道工程量的计算: 1.DN50的镀锌钢管工程量的计算式: 1.5+(3.6-0.2)=4.9(m) 2.DN32的镀锌钢管工程量的计算式: (1+0.45)+(1+1.9+3)+ (5-0.2-0.2)=11.95(m) 3.DN25的镀锌钢管工程量的计算式: (6.45-0.45)+(7.9-4.9)+[(1.08+0.83+0.54+0.9+0.9)]×3=21.75(m) 4.DN20的镀锌钢管工程量的计算式: (7.2-6.45)+[(0.69+0.8)+(0.36+0.75+0.75)] ×3=10.8(m) 5.DN15的镀锌钢管工程量的计算式: [(6.8-6.45)+0.75+0.91+0.25]×3=6.78(m) 分部分项工程量清单与计价表表6. Ⅱ.3 问题2: 工程量清单综合单价分析表 表6.Ⅱ.4 问题3: 分部分项工程量清单与计价表 表6.I.5 问题4:报价浮动率=1-(444400-4400)/(485500-5500)=8.33% 综合单价为:[120+(290-120)+ 120*1.2]*(1-8.33%)+420=795.85(元)

相关内容:项目,车间,厂房,设计,方案,钢筋混凝土,排架,结构,如图,体系,现场,标准,构件,混凝土,强度,等级,参考

猜你喜欢

发表评论
更多 网友评论0 条评论)
暂无评论

访问排行

Copyright © 2012-2014 恰考网 Inc. 保留所有权利。 Powered by tikuer.com

页面耗时0.0450秒, 内存占用1.06 MB, Cache:redis,访问数据库20次