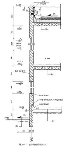
如图10-2所示,为一建筑施工图。问题:简述墙身防潮层常用的构造做法。

作者: rantiku 人气: - 评论: 0
问题 如图10-2所示,为一建筑施工图。 问题: 简述墙身防潮层常用的构造做法。
选项
答案
解析 墙身防潮的方法是在墙脚铺设防潮层,以防止土层和地面水渗入砖墙体。墙身防潮层常用的构造做法有三种,即:(1)防水砂浆防潮层;(2)细石混凝土防潮层;(3)卷材防潮层。

猜你喜欢

发表评论
更多 网友评论0 条评论)
暂无评论

访问排行

Copyright © 2012-2014 恰考网 Inc. 保留所有权利。 Powered by tikuer.com

页面耗时0.0383秒, 内存占用1.03 MB, Cache:redis,访问数据库19次