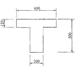
T形截面梁,尺寸如图所示,如按最小配筋率ρmin=0.2%配置纵向受力钢筋As,则As的计算式为: A. 600X465X0.2%=558mm2 ...

作者: tihaiku 人气: - 评论: 0
问题 T形截面梁,尺寸如图所示,如按最小配筋率ρmin=0.2%配置纵向受力钢筋As,则As的计算式为: A. 600X465X0.2%=558mm2 B. 600X500X0.2%=600mm2 C. 200X500X0.2%=200mm2 D. [200X500+ (600-200) X120] X0. 2%=296mm2
选项
答案 C
解析 提示:理论上,最小配筋率是根据受弯构件的破坏弯矩等于同样截面素混凝土构件的破坏弯矩确定的,而T形截面素混凝土梁的受弯承载力比矩形截面梁提高不多,为简化计算,ρmin仍按矩形截面计算,故ρmin=As,min/bh。

相关内容:截面,尺寸,如图,配筋率,配置,纵向,受力,钢筋,算式,600X465X0.2%,558mm2

猜你喜欢

发表评论
更多 网友评论0 条评论)
暂无评论

Copyright © 2012-2014 恰考网 Inc. 保留所有权利。 Powered by tikuer.com

页面耗时0.0692秒, 内存占用1.04 MB, Cache:redis,访问数据库18次