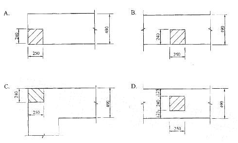
如图所示,截面尺寸为240mmX250mm的钢筋混凝土柱,支承在490mm厚的砖墙上,墙采用MU10砲块、M2.5混合砂浆砌筑,可能最先发生局部受压破坏的...

作者: tihaiku 人气: - 评论: 0
问题 如图所示,截面尺寸为240mmX250mm的钢筋混凝土柱,支承在490mm厚的砖墙上,墙采用MU10砲块、M2.5混合砂浆砌筑,可能最先发生局部受压破坏的是哪个图所示的砖墙?
选项
答案 A
解析 提示:砌体局部抗压调整系数,其中Al为局部受压面积,A0为影响砌体局部抗压强度的计算面积。应注意不同情况下γ的最大取值,见《砌体结构设计规范》第5. 2. 2条。

相关内容:如图,截面,尺寸,240mmX250mm,钢筋混凝土,墙上,砲块,混合,砂浆,可能,局部

猜你喜欢

发表评论
更多 网友评论0 条评论)
暂无评论

Copyright © 2012-2014 恰考网 Inc. 保留所有权利。 Powered by tikuer.com

页面耗时0.0330秒, 内存占用1.04 MB, Cache:redis,访问数据库20次